Spa Lane, Hinckley | New Build 4 Bedroom House Design

Explore the Spa Lane, Hinckley project featuring a new build 4 bedroom family house with feasibility design and a modern architectural approach by Architectural Vistadesigns.

New Build Design

Project Overview

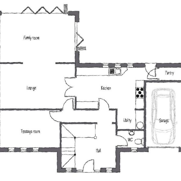
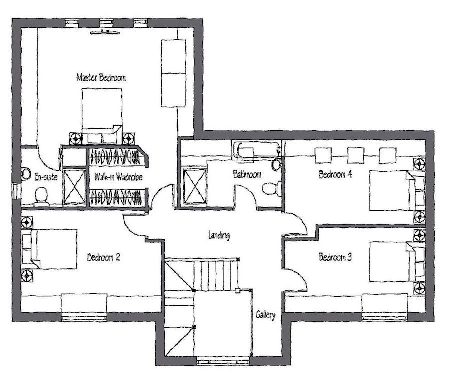
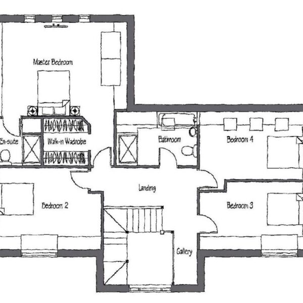
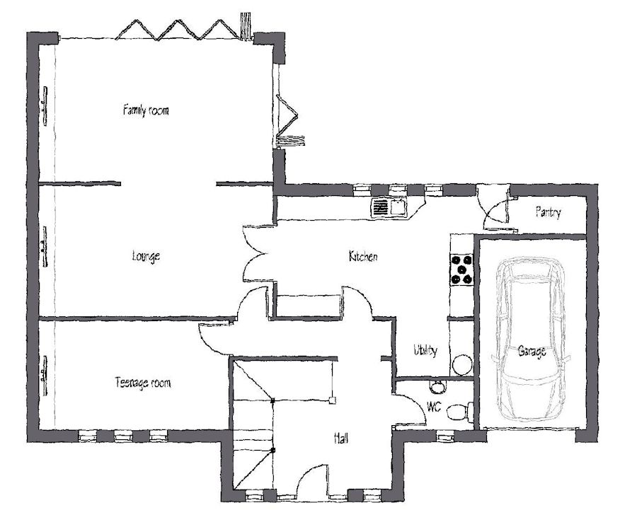
Architectural Vistadesigns was instructed to design a new build 4 bedroom family dwelling on a plot of land in Hinckley. The project focused on creating a spacious and well-considered home that made the best possible use of the site while responding to the opportunities presented by the plot.

Spa Lane, Hinckley | New Build 4 Bedroom House Design

This proposal was developed as a modern family home, with careful attention given to layout, light, appearance, and the relationship between the building and its boundary. The aim was to create a practical and attractive new dwelling suited to contemporary living.

Spa Lane, Hinckley | New Build 4 Bedroom House Design

What We Did

Our work included:

  • Architectural design
  • Feasibility design

The Design Approach

The proposed dwelling was fenestrated to move away from directly reflecting the local vernacular, instead introducing a subtle modern architectural twist to the overall design. The space planning of the dwelling was carefully arranged to maximise the land within the site boundary, while the internal layout was designed to create a free-flowing family home suited to modern day living.

The elevations combined brick and render, together with a key gable feature incorporating a glazed section designed to filter light into the hall and first floor gallery. This helped give the new build house a stronger architectural identity while also improving the quality of light within the home.

Thinking About a Similar Project?

If you are planning a new build home, need planning support, or want help unlocking the potential of a residential plot, Architectural Vistadesigns can help.

Other Projects

View this new build 4 bedroom family house project in Earl Shilton, with architectural design, planning support, landscaping and detailed design by Architectural Vistadesigns.

New Build House Design in Earl Shilton

View this new build 4 bedroom family house project in Earl Shilton, with architectural design, planning support, landscaping and detailed design by Architectural Vistadesigns.